Противопожарные металлические двери ei-60 (208)
Производство противопожарных дверей ДПМ EI 60 на заказ
Металлические противопожарные двери от компании «НИКА СТАЛЬ» служат надежной защитой от распространения пожара в соседние помещения. Двери производятся по стандарту ГОСТ и имеют установленную огнестойкость EI 60, подтвержденную сертификационными испытаниями.
Входные и внутренние огнеупорные двери предназначены для установки в нежилые помещения и жилые многоквартирные дома. Они подходят для мест с высоким риском возникновения пожара, помещений с большим скоплением людей, объектов со строгими требованиями к безопасности.
Рекомендуется установка в следующих местах:
- пути эвакуации, коридоры, холлы;
- торговые залы;
- складские помещения различных категорий;
- производственные цеха;
- подъезды, подвалы, выходы на кровлю;
- лифтовые холлы;
- комнаты с электрооборудованием;
- бойлерные и котельные.
- Двери для подстанцийот 55 000 руб.
- Тамбурные двериот 22 000 руб.
- Коричневого цветаот 18 000 руб.
- Двери с системой антипаникаот 25 000 руб.
- Двери для капремонта ФКРот 35 000 руб.
- Для медицинских учрежденийот 18 000 руб.
- Двери EIW-60от 30 000 руб.
- Дымогазонепроницаемые EIS-60от 18 000 руб.
- Двери из нержавеющей сталиот 47 000 руб.
- Остекленные противопожарные двериот 24 000 руб.
- Из оцинкованной сталиот 18 000 руб.
- Двери с вентиляциейот 20 000 руб.
- Одностворчатые противопожарные двериот 18 000 руб.
- Двустворчатые противопожарные двериот 22 000 руб.
- Глухие противопожарные двериот 18 000 руб.
- Полуторныеот 22 000 руб.
✓ Шагрень матовый/глянец, антик, шелк, крокодил

✓ Экологичность и долговечность!

- 20 летРаботаем на рынке производства дверей и металлоконструкций
- 100000 дверейВыпущено с нашего производства и установлено по всей России
- 98%Рекомендаций нас от наших покупателей своим знакомым!
Характеристики и комплектация
Наш завод производит огнеупорные двери из холоднокатаной стали, укомплектованные негорючими материалами и комплектующими (базальтовая теплоизоляция, термолента, уплотнители, жаростойкие замки). В каталоге на сайте представлены разные типы дверей под любые задачи:
- глухие;
- с остеклением (многослойный огнестойкий стеклопакет);
- с вентиляционными решетками сверху, снизу или в середине полотна;
- однопольные ДПМ-01;
- двупольные ДПМ-02;
- полуторапольные;
- нестандартные с верхними фрамугами и боковыми вставками.
Любые заказанные двери, можно доукомплектовать доводчиками, «Антипаникой», защитными отбойниками.
Точные размеры дверей определяются замерщиком, при выезде на объект или после получения спецификации от заказчика.
Двери EI 60 разрешены для монтажа в стены и перегородки 1-го типа.
Базовые характеристики для двери EI-60
Дверь металлическая противопожарная Еі 60 однопольная / двупольная из стали 1,2 мм (1,4 мм), с порогом / без порога, коробка угловая с наличником по 50 мм с 3-х сторон / торцевая без наличника, наполнение базальтовая плита 60 мм, петли капли по 2 шт. на полотно. Замок противопожарный, ручка на планке черная, цилиндр кл/ кл, уплотнение по периметру (Е), термолента. RAL стандарт шагрень, открывание наружу, левая/правая.
Базовые характеристики для двери EIS-60
Дверь металлическая противопожарная дым/газ Eis 60 однопольная / двупольная из стали 1,2 мм (1,4 мм), с порогом, коробка угловая с наличником по 50 мм с 3-х сторон / торцевая без наличника, наполнение базальтовая плита 60 мм, петли капли по 2 шт. на полотно. Замок противопожарный, ручка на планке черная, цилиндр кл/кл, уплотнение по периметру (Е+Д), термолента. RAL стандарт шагрень, открывание наружу, левая/ правая.
Схема двери

1) Каплевидная петля на опорном подшипнике, диаметр 22 мм. 2) Терморасширяющаяся противопожарная лента 15х1,5 мм. 3) Резиновый уплотнитель E. 4) Резиновый уплотнитель D. 5) Базальтовая каменная плита isovol 150-200 (противопожарная). 6) Противопожарный замок Door Lock. 7) Карман под замок. 8) Дверная коробка (цельногнутая стальная). 9) Дверное полотно (цельногнутое стальное). 10) Лист металла 1,4 мм холоднокатанный (порошковый окрас)
Варианты монтажа противопожарных дверей
Под подходящий вам вариант монтажа двери мы изготавливаем подходящий вариант конструкции двери. На схемах представлены варианты крепления наших дверей в стандартный проем.

Варианты базовых конструкций

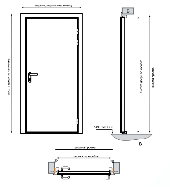
Габариты для расчета стоимости конструкции двери

Позвоните нам или заполните форму заказа прямо на сайте, чтобы купить противопожарные двери для ваших объектов. Собственное производства, выгодная цена на оптовые партии. Доставка по всей России. Профессиональный монтаж в Москве и Московской области. Специальные предложения для застройщиков и подрядчиков.
- Проектирование и дизайнПодготовим проект оснащения вашего объекта стальными изделиями под ключ. Стандартные и дизайнерские решения! Полный комплект документов.
- Выезд замерщикаУслуга действует на территории Московской области и Краснодарского края.
- ПроизводствоСобственная технологическая база. Современное оборудование. Обслуживающий персонал высокого профессионального уровня.
- ДоставкаДоставляем готовую продукцию по всей России и в страны ближнего зарубежья.











































































